中古一戸建て 三豊市高瀬町新名
所在地
三豊市高瀬町新名
2,380万円
28.05坪
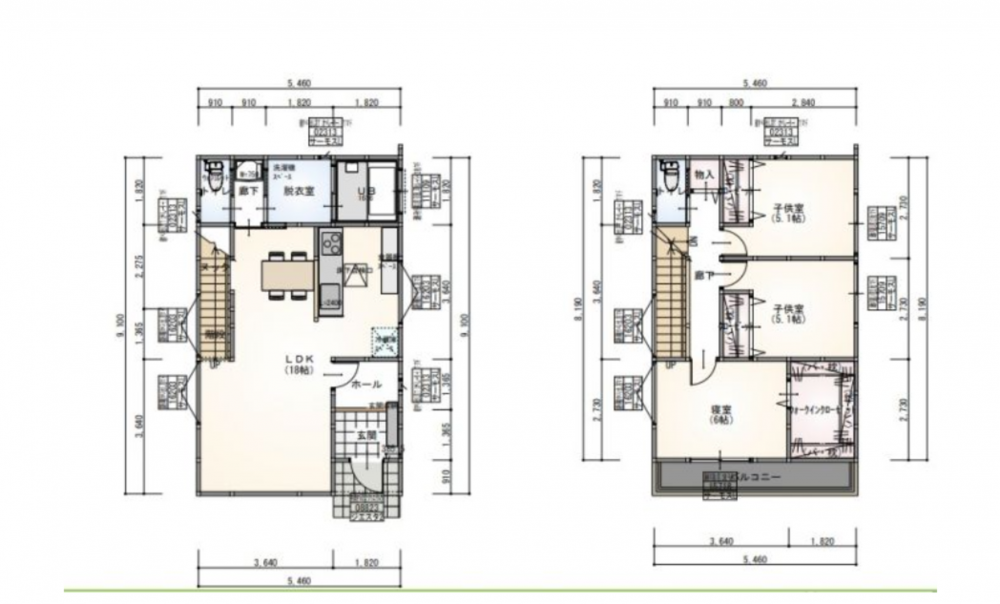
3LDK
・人気の高瀬エリアです。
・マルナカ高瀬店まで徒歩約7 分(約450 m)
・ローソン 高瀬町上高瀬店まで徒歩約9 分(約650 m)
・白井病院まで徒歩約9 分(約600 m)
物件概要
- 交通
-
予讃線 高瀬駅 まで 徒歩8分
- 接道状況
- 南西側 私道6m 間口約21.8m
- 土地面積
- 公簿 184.09㎡ (55.68坪)
- 建物面積
- 92.73㎡ (28.05坪)
- 築年数
-
2023年
(令和5)
12月
築2年 - 建ぺい率
- 70%
- 容積率
- 200%
- 土地権利
- 所有権
- 構造および階数
- 木造 地上2階建
- 小学校区
- 上高瀬 ( 1200m )
- 中学校区
- 高瀬 ( 1100m )
- 私道負担
- 地目
- 宅地
- 現況
- 空
- 引渡時期
- 相談
- 駐車場
- 有
- 上水道
- 公共
- 下水道
- ガス
- 都市計画
- 非線引区域
- 用途地域
- 設備・条件
- オール電化、システムキッチン、IHクッキングヒーター、食器洗浄乾燥機、浴室乾燥機、ウォークインクローゼット、複層ガラス、駐車場3台分、トイレ2箇所
- 備考
- 電気,上水道,浄化槽,システムキッチン,食器洗浄乾燥機,IHクッキングヒーター,トイレ2箇所,浴室乾燥機,BS端子,複層ガラス,オール電化,ウォークインクローゼット,駐車場3台分,モニター付きインターホン,建築確認完了検査済証
- 取引態様
- 仲介

