中古一戸建て 観音寺市高屋町
所在地
観音寺市高屋町
500万円
48.25坪
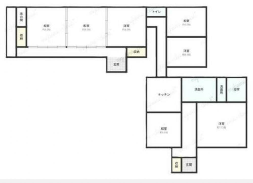
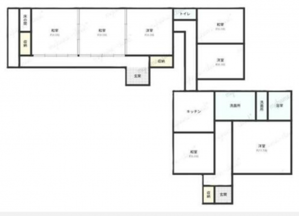
7DK
・破産管財人弁護士が選任されている破産事件であり、売却には破産管財人の承諾が必要になります。公簿売買、現況通史取引となります。
・ファミリーマート観音寺高屋町店 約495m(徒歩約7分)
・マルナカ八幡店 約1,489m(徒歩約19分)
物件概要
- 交通
-
JR予讃線 まで 徒歩34分
- 接道状況
- 南側 公道
- 土地面積
- 305.47㎡ (92.40坪)
- 建物面積
- 159.51㎡ (48.25坪)
- 築年数
-
1978年
(昭和53)
11月
築47年 - 建ぺい率
- 容積率
- 土地権利
- 所有権
- 構造および階数
- 木造
- 小学校区
- 高室 ( 246m )
- 中学校区
- 観音寺 ( 1508m )
- 私道負担
- 地目
- 現況
- 空
- 引渡時期
- 相談
- 駐車場
- 有
- 上水道
- 公共
- 下水道
- 浄化槽個別
- ガス
- プロパン個別
- 都市計画
- 区域外
- 用途地域
- 設備・条件
- 側溝
- 備考
- 取引態様
- 仲介

